Loading
夏威夷凯鲁瓦-科纳乡村 TEA 度假型住宅项目。

投资者信心信号
开启合作前即获信赖













三个关键徽章向投资人展示递件保障、USCIS 审查与执行力。

递交后的 I-526E 享受制度性保护,体现项目与案件的长期稳健度。

项目层面获批,表明认购前已完成联邦审查,建立更高信任度。

可见的施工与就业增长,验证项目动能而非停留在纸面预测。
全新联排别墅群坐落于火山岩地貌与热带雨林环抱之中,让住户沉浸于大岛原始自然美景的同时,享受现代度假级生活品质。全景落地窗、宽敞露台与无垠海景视野,巧妙模糊室内外界限,打造纯正的海岛度假居所,极具高端短租市场竞争力。
坐落于凯卢阿-科纳(Kailua-Kona)的凯阿拉凯库亚(Keauhou)地区,毗邻世界级高尔夫球场和海滩,步行即可抵达购物中心、餐厅与文化地标。
项目位于高地地形,坐拥太平洋全景视野,背靠莫纳罗亚火山(Mauna Loa)天然屏障,并处于海啸疏散安全区外。
联排别墅定价极具竞争力,配备高端装修与度假级配套,合法短租资质为投资回报提供双重保障。
拥有 77 年房地产开发经验,成功打造全美多个标杆住宅社区。
项目直击夏威夷住房短缺痛点,依托强劲旅游及迁居趋势,作为政府认证的度假租赁友好型资产增值空间显著。
距科纳国际机场仅 10 分钟车程,兼顾度假客与投资购房者的出行需求。
冲浪、浮潜、高尔夫及火山国家公园探索等全年无休的丰富活动,持续带动租赁需求。
合法分区允许业主通过短租获取收益,同时保留自主使用权。
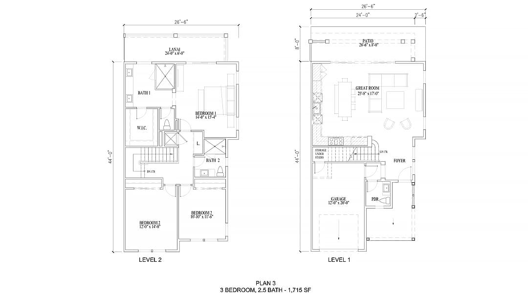
占地24.5英亩的 Keauhou 联排别墅坐落于夏威夷知名的风景胜地凯卢阿-科纳壮丽的海岸线上,是一个融合现代奢华与夏威夷自然之美的新型度假式住宅社区。项目包含23栋两层建筑,约122至128套联排别墅,每套配备2至4间卧室、1700平方英尺(约158平方米)的生活空间、宽敞的露台以及私人单车位车库。
项目社区距离科纳国际机场仅10分钟车程,片刻即可抵达凯阿拉凯库亚湾、科纳乡村俱乐部等标志性目的地,坐拥无与伦比的海滩、高尔夫球场、文化景点及生活便利设施。
住户与访客可享受高端配套设施,包括两座泳池、会所、健身设施及两处休闲中心——无论是长期居住还是短期度假租赁,这里都是极具吸引力的海岛选择。
阶段
施工航拍
实地更新
阶段
该月施工照片与视频即将发布,敬请期待。
本页面仅供信息参考,不构成任何证券或投资产品的出售要约、购买邀请或投资建议。本文档所含信息基于被认为可靠的来源,但对其准确性、完整性或可靠性不作任何明示或暗示的保证。所有提供的前瞻性陈述或预测均可能随时变更,且实际结果可能有所不同。投资涉及风险,包括可能损失本金,未必适合所有投资者。Beyond 提供此信息,但不提供任何关于未来表现的保证或担保。所有前瞻性陈述均受重大风险和不确定性影响,实际结果可能存在重大差异。潜在投资者在做出任何投资决策前应咨询自身的财务、法律及税务顾问。未经事先书面同意,不得复制或出于其他目的使用本文件及其内容。查阅本文件即表示您确认并同意上述条款,并对其中包含的信息保密。 本文件所含信息(包括商业计划)由 Beyond 与开发商或其关联方共同编制,仅供有限数量的接收者参阅,旨在向潜在投资者说明相关固有风险并阐明所提供信息的性质。 所有信息(包括财务预测、市场分析及物业评估)均基于反映当前市场状况的初步假设,可能随时变更,不应被解读为业绩保证。商业房地产市场本身具有不确定性,实际结果可能存在重大差异。Beyond 对本信息的准确性或完整性不作任何明示或暗示的陈述或保证,所有预测均为推测性的前瞻陈述。 投资者在做出投资决策时不应仅依赖本备忘录。本文件未涵盖所有重要事实,应与其他信息来源结合使用。强烈建议潜在投资者咨询财务、法律、税务及其他顾问,以评估投资风险及适合性。 开发商与 Beyond 建议投资前进行全面尽职调查,包括审阅所有相关文件、法律条款及市场数据,并评估个人财务目标与风险承受能力。充分理解投资内容对于做出明智的战略决策至关重要。